Ogłoszeń: 2637   Czytających: 15327
Walbrzyszek.com

Nowoczesny dom wolnostojący z widokiem na Śnieżkę

Telefon / kontakt:
Dodane:
dziś, 12:16
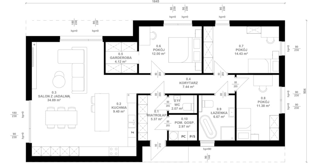
Przedstawiam ofertę sprzedaży nowoczesnego domu położonego w prestiżowej dzielnicy Jeleniej Góry, przy ulicy Wróblewskiego w Uzdrowisku Cieplice. Nieruchomość położona w atrakcyjnej lokalizacji, w sąsiedztwie lasu, z pięknym widokiem na panoramę Karkonoszy. Dom parterowy, wolnostojący o powierzchni 110,73 m² (plus 38m2 poddasze nieużytkowe), na działce o powierzchni 630m2.

Dom sprzedawany w stanie deweloperskim - gotowy do wykończenia i wprowadzenia.

Nowoczesny dom parterowy łączący nowoczesność z funkcjonalnym rozkładem pomieszczeń. Otwarta strefa dzienna z dużymi przeszkleniami wypełnia wnętrze naturalnym światłem tworząc efekt przestronności. Część prywatna obejmuje trzy komfortowe sypialnie, garderobę oraz łazienkę. Dodatkowe pomieszczenie gospodarcze i osobna toaleta zwiększają codzienną wygodę użytkowania. To idealny wybór dla osób ceniących nowoczesny design, przestrzeń i praktyczne rozwiązania.

Rzut budynku z układem pomieszczeń w galerii.

Specyfikacja techniczna budynku: posadowienie na docieplonej płycie fundamentowej, ściany zewnętrzne keramzytobetonowe gr. 15cm, ściany wewnętrzne keramzytobetonowe gr. 12cm, konstrukcja dachowa z prefabrykowanych wiązarów w technologii MiTeK, dach dwuspadowy z ukrytymi rynnami GALECO, pokryty dachówką CREATON, kompletne orynnowanie i rury spustowe, wysokiej jakości stolarka okienna PCV w kolorze antracytowym, ciepły montaż stolarki okiennej, drzwi zewnętrzne antywłamaniowe wysokiej jakości, podłoga docieplona styropianem, jastrych cementowy, instalacja elektryczna wewnętrzna, wyprowadzenie instalacji elektrycznej na zewnątrz – zasilania bramy wjazdowej, domofonu, oświetlenia, instalacja wodno-kanalizacyjna, instalacja c.o. – ogrzewanie podłogowe w całym budynku, elewacja tynkowana, styropian gr. 20cm, parapety zewnętrzne, podbitka, wewnątrz sufit podwieszany G-K z dociepleniem wełną mineralną 25-30cm.

Dodatkowo możliwość montażu pompy ciepła, klimatyzacji oraz wykonania pzt i przyłączy wod.-kan. (studnia, zbiornik na nieczystości), powiększenia działki do 940m2, adaptacja poddasza nieużytkowego na użytkowe (+38m2 powierzchni użytkowej - dodatkowe 2/3 sypialnie i łazienka).

Planowany termin oddania do użytkowania: sierpień/wrzesień 2026.

W przypadku podpisania umowy do 30.04.2026 możliwość wykonania zmian układu pomieszczeń wewnętrznych i instalacji.

Serdecznie zapraszam do kontaktu.
Nr ogłoszenia: 1864161 Ważne do: 2026-04-25 12:16:10

Więcej z kategorii Sprzedam dom

Piętro domu z ogrodem - 106m - garaż - 999tys
Biuro Nieruchomości Dębiec ma przyjemność zaprezentować parter domu z bezpośrednim wyjściem na ogród w Jeżowie Sudeckim. Nieruchomość o powierzchni całkowitej 141,70 m2 i użytkowej 106
Sprzedam dom-wczoraj, 21:10
Szukasz wspaniałego nowoczesnego domu - oto on
Mam przyjemność zaprezentować Państwu dom jednorodzinny parterowy, w przepięknej okolicy w Jeżowie Sudeckim do dokończenia w środku. Wykonany w szwedzkiej technologi keramzyto – betonowej, z
Sprzedam dom-30 marca
Dom z pięknym ogrodem i garażem - Cieplice!
Biuro Nieruchomości Sudety ma do zaoferowania atrakcyjny dom wolnostojący z ogrodem i garażem zlokalizowany w jednej z najbardziej poszukiwanych dzielnic Jeleniej Góry - Cieplice Śląskie - Zdró
Sprzedam dom-2 kwietnia
Dom 450000 zł
Połowa domu w podziale pionowym w Szklarskiej Porębie Dolnej. Usytuowana w spokojnej części miasta, w budynku po remoncie, gdzie została wykonana elewacja wraz z ociepleniem, izolacja oraz ociepl
Sprzedam dom-30 marca
Przytulny dom do wprowadzenia
Kama Nieruchomości z przyjemnością prezentuje wyjątkową ofertę - urokliwy dom o powierzchni 110 m², usytuowany na przestronnej działce o powierzchni 2044 m², w malowniczej miejscowości Stara
Sprzedam dom-30 marca
2 domy w zabudowie bliźniaczej Piechowice 999tys.
Biuro Nieruchomości MARLES przedstawia Państwu ofertę sprzedaży położonej w cichym i spokojnym miejscu w Piechowicach. Nieruchomość składa się z dwóch domów o łącznej powierzchni całkow
Sprzedam dom-8 kwietnia
Dom do remontu. Staniszów
••• OFERTA NA WYŁĄCZNOŚĆ ••• Na sprzedaż dom w miejscowości Staniszów Nieruchomość o powierzchni użytkowej 276 m², wraz z budynkami gospodarczymi, co daje łączną powier
Sprzedam dom-29 marca
Moniuszki. Możliwość podziału na 2 lokale
Na sprzedaż – segment szeregówki na Zabobrzu! Oferta na wyłączność! Powierzchnia całkowita: 255 m² | Działka: 250 m² Cena: 1 349 000 zł (do negocjacji) Oferta na wyłączność
Sprzedam dom-29 marca
Dom wolnostojący w Ciechanowicach
Kama Nieruchomości z przyjemnością prezentuje wyjątkową ofertę - komfortowy dom wolnostojący o powierzchni całkowitej 144 m² , z garażem w bryle budynku, usytuowany na urokliwej, ogrodzonej
Sprzedam dom-30 marca
© 2002-2026 Highlander's Group