Ogłoszeń: 2783   Czytających: 13512
Walbrzyszek.com

Dom w centrum - ul. Poznańska

Telefon / kontakt:
Dodane:
dziś, 14:00
Biuro nieruchomości Perfect ma do zaoferowania Państwu dom w zabudowie szeregowej w centrum Jeleniej Góry - ul. Poznańska.

Dom z potencjałem w samym centrum Jeleniej Góry! Nieruchomość łączy w sobie funkcję mieszkalną i użytkową, co czyni ją idealnym wyborem zarówno dla rodziny, jak i inwestora szukającego miejsca na biznes z zapleczem mieszkalnym.

Budynek z lat 80-tych, środkowy szereg, położony na działce o powierzchni 368m2. Wybudowany w technologii tradycyjnej - ściany piwnicy betonowe, ściany konstrukcyjne kondygnacji nadziemnej z cegły pełnej oraz bloczki gazobetonowe, ściany działowe cegła dziurawka. Dach częściowo wymieniony. Okna w całości PCV. Ogrzewanie centralne gazowe - piec 2 funkcyjny.

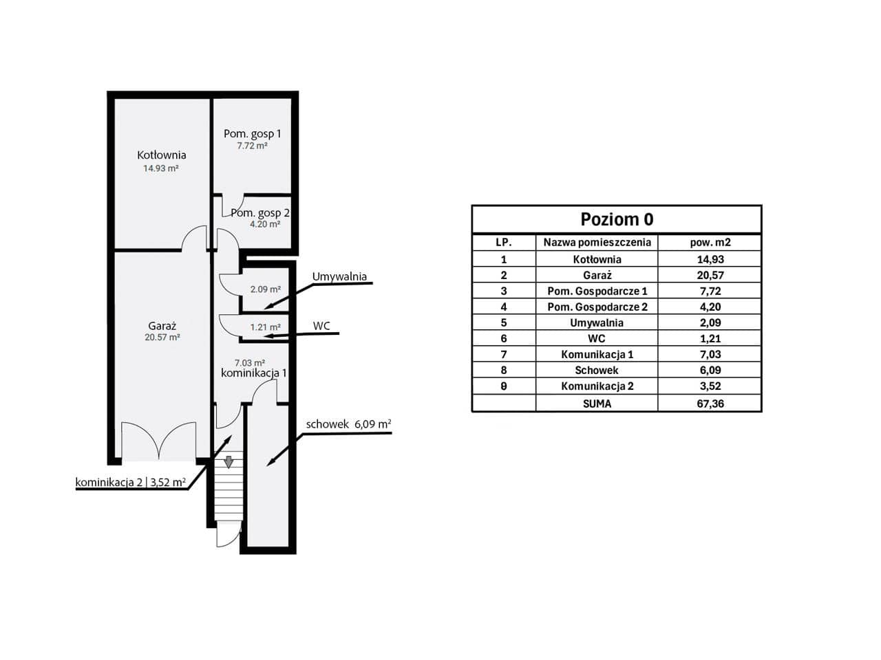
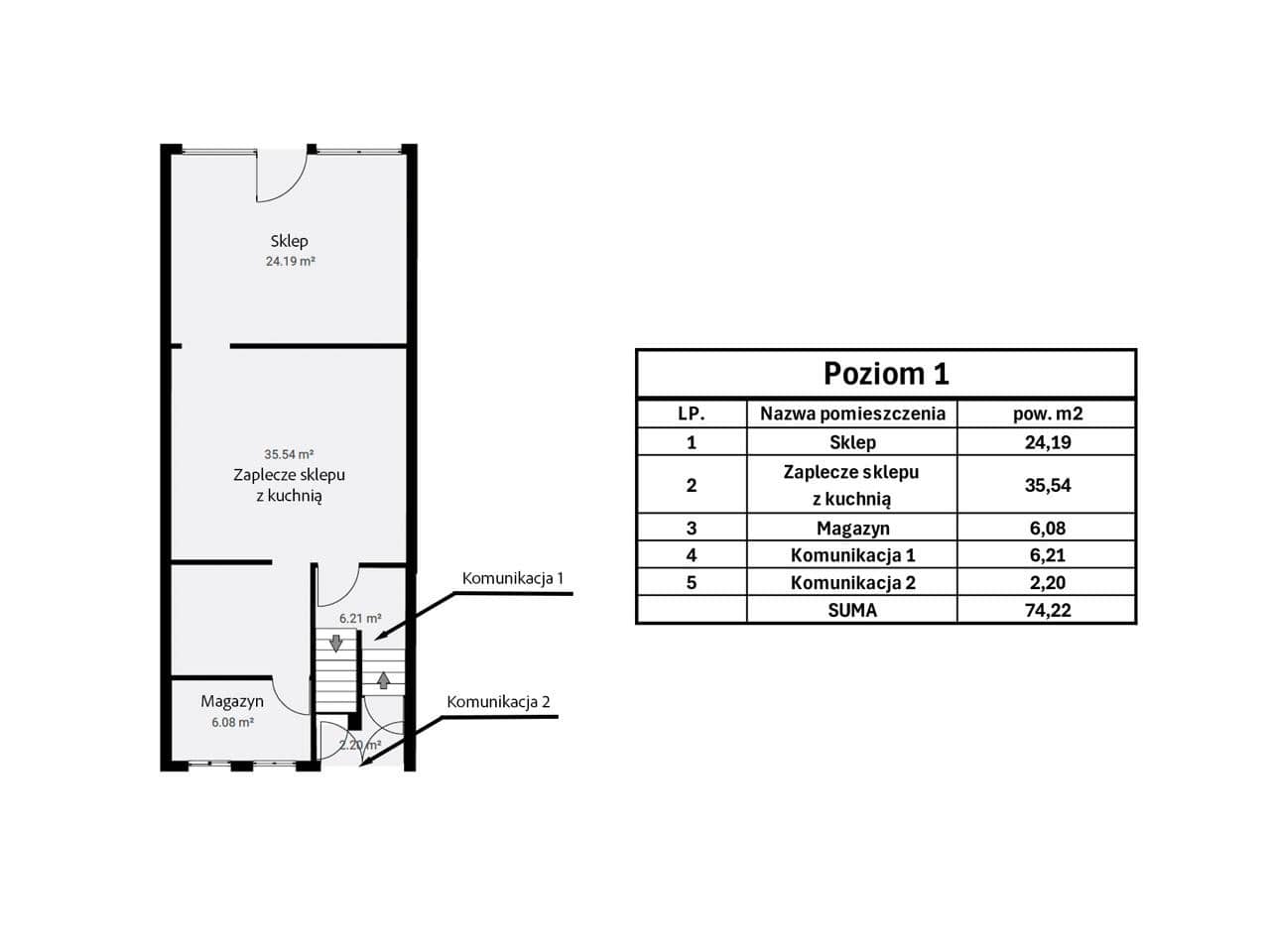
Nieruchomość o powierzchni całkowitej ponad 340m2 oraz użytkowej ok 200m2 - trzy kondygnacje nadziemne plus garaż i pomieszczenia gospodarcze.

Na pierwszym poziomie znajduje się lokal użytkowy aktualnie wynajmowany. Część mieszkalna znajduje się na 2 i 3 poziomie. Wymiary i rozkład pomieszczeń w zdjęciach.

Nieruchomość dzięki swojej lokalizacji w samym centrum Jeleniej Góry sprawdzi się zarówno jako miejsce do zamieszkania, jak i inwestycja. To przestronny dom z garażem i lokalem użytkowym – idealne połączenie wygody mieszkania w sercu miasta z funkcjonalnością i potencjałem biznesowym.

Po odświeżeniu może stać się rodzinnym azylem albo źródłem dodatkowego dochodu. To doskonała propozycja dla osób poszukujących przestrzeni, wygody i możliwości.

Oferta dostępna wyłącznie u nas.

Cena - 1.200.000 zł

Polecam i zapraszam na prezentację.
Nr ogłoszenia: 1848102 Ważne do: 2025-10-26 14:00:02

Inne ogłoszenia użytkownika

Więcej z kategorii Sprzedam dom

Kamienica w centrum - byłe kasyno policyjne
Wyjątkowa nieruchomość w sercu miasta – zabytkowy budynek z gotowym projektem aparthotelu i aktywnym pozwoleniem na budowę. Na sprzedaż oferujemy historyczny, wolnostojący budynek z lat 20
Sprzedam dom-dziś, 15:00
Pół domu z garażem w Ścięgach
Nieruchomości Panorama prezentuje Państwu na sprzedaż połowę domu położoną w Ścięgnach koło Karpacza. W skład nieruchomości o pow. 55 m2 wchodzą: PARTER - przedpokój, łazienka
Sprzedam dom-9 paźdź.
Dom w cenie mieszkania Kamiennej Górze
Kama Nieruchomości prezentuje Państwu jednopiętrowy dom wolnostojący o powierzchni 85 m² , pochodzący z lat 70., z funkcjonalnym garażem w bryle budynku. Nieruchomość usytuowana jest w urokli
Sprzedam dom-1 paźdź.
Nowy bliźniak w Siedlęcinie
Biuro nieruchomości Perfect ma do zaoferowania Państwu nowy dom w zabudowie bliźniaczej - położony kilka minut od miasta - Siedlęcin gmina Jeżów Sudecki. Dom wybudowany w 2025r. z gazobeto
Sprzedam dom-dziś, 14:00
Dom w Przesiece
*** Oferta na wyłączność – nie szukaj dalej *** Biuro Nieruchomości Panorama przedstawia Państwu na sprzedaż dom wolnostojący w urokliwej podgórskiej miejscowości Przesieka. Budynek
Sprzedam dom-3 paźdź.
Dom wolnostojący w Piechowicach
Dom wolnostojący w Piechowicach – dwa niezależne mieszkania Biuro Nieruchomości Panorama prezentuje na sprzedaż wyjątkowy dom wolnostojący o powierzchni ok. 170 m², położony w malowniczych
Sprzedam dom-7 paźdź.
Dom z potencjałem. Dwa mieszkania. Duża działka
OFERTA SPRZEDAŻY DOMU – IDEALNY DLA RODZINY LUB INWESTORA Na sprzedaż nieruchomość o dużym potencjale, położona na działce o powierzchni 5900 m². Budynek mieszkalny o powierzchni użytko
Sprzedam dom-1 paźdź.
Dom z podziałem na mieszkania, gotowa inwestycja!
Biuro Nieruchomości Optima prezentuje na sprzedaż wyjątkową nieruchomość – nowoczesny dom w zabudowie bliźniaczej z dwoma niezależnymi apartamentami, położony w jednej z najbardziej malown
Sprzedam dom-6 paźdź.
Nowy dom w zabudowie bliźniaczej, Jeżów Sudecki
Nowy Dom w zabudowie bliźniaczej w Jeżowie Sudeckim. Posadowiony na działce 347 m2, budowany z Ytonga , ocieplony, wykończony tynkiem gtafit, dach pokryty dachówką ceramiczną. Projekt " Do
Sprzedam dom-2 paźdź.
© 2002-2025 Highlander's Group