Ogłoszeń: 2674   Czytających: 12326
Walbrzyszek.com

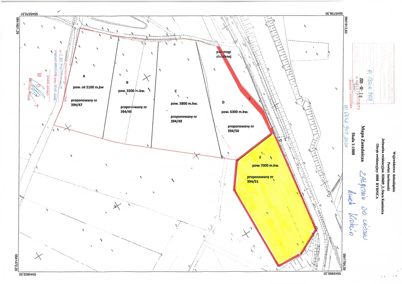
Budowlana siedliskowa 7000 m.kw. 40 zł/m.kw.

Telefon / kontakt:
Dodane:
dziś, 17:28
Oferujemy do sprzedaży działkę rolno budowlaną o powierzchni ok 7000 m². Działka ma wymiary 59 x 120 m.

Znajduje się przy asfaltowej drodze , ulicy Goduszyńskiej w Rybnicy, zaraz za granicami Goduszyna.

Dojazd wyznaczony zostanie przez służebność od drogi gminnej, jednak można wystąpić o uzgodnienie zjazdu wprost z drogi powiatowej.

Teren oznaczony w MPZP jako 3R/RM tzn Tereny rolnicze z dopuszczeniem zabudowy siedliskowej. w skrócie można w ramach działalności rolniczej wybudować co najmniej jeden dom mieszkalny z budynkiem/budynkami gospodarczymi.

Działkę rolno budowlaną poniżej jednego hektara może nabyć każdy obywatel, nie musi posiadać uprawnień rolniczych.

Na podstawie postanowienia Wójta Gminy stara Kamienica z dnia 23.03.2026 wydano pozytywną opinię dot. podziału działki po powierzchni 2,94 na 5 działek o powierzchni od 5100 do 7000 m.kw.

Przedmiotem sprzedaży jest działka, jaka zostanie wydzielona zgodnie z procedurami geodezyjnymi w możliwie najszybszym czasie, prawdopodobnie do końca sierpnia 2026.

Najbliższe budynki ok 100 metrów dalej.
Istnieje możliwość rezerwacji / umowy przedwstępnej.

Otoczenie to piękne otwarte tereny podgórskie , w pobliżu lasy, idealne dla miłośników natury. W odległości ok 1,3 km stajnia Gostar idealna dla miłośników koni.

Nieruchomość znajduje się w spokojnej wsi. W okolicy znajdziesz:

lasy i góry
otwarte tereny podgórskie
dogodny dojazd do komunikacji publicznej - stacja kolejowa 300 m.
przystanki autobusowe w pobliżu ok 500 m.
Stajnia Gostar 1,3 km
dogodny dojazd w kierunku Zgorzelca i Jeleniej Góry
ulica Goduszyńska , wzdłuż linii kolejowej.
Działka nie jest ogrodzona, co daje Ci swobodę w zagospodarowaniu przestrzeni. To miejsce, gdzie możesz stworzyć swój wymarzony dom lub inwestycję.

Oferta biura nieruchomości. Pracujemy i pobieramy wynagrodzenie za wykonaną pracę także od klientów kupujących. Remigiusz Rychlewski
Nr ogłoszenia: 1864026 Ważne do: 2026-04-23 17:28:04

Inne ogłoszenia użytkownika

Więcej z kategorii Sprzedam działkę

25 ha działek wraz z domem . Podgórki
LW NIERUCHOMOŚCI – OFERTA NA WYŁĄCZNOŚĆ Na sprzedaż wyjątkowe gospodarstwo rolne / siedlisko położone w malowniczej miejscowości Podgórki, gmina Świerzawa, w sercu Pogórza Kaczawski
Sprzedam działkę-29 marca
Dąbrowica - duża działka budowlana
Działka budowlana o powierzchni 2753 m2, w Dąbrowicy, dojazd samochodem do centrum Jeleniej Góry to tylko 10 min Małe , ciche, spokojne , pełne zieleni osiedle. Na osiedlu znajduje się tylko kil
Sprzedam działkę-wczoraj, 13:00
Czarne
Witam serdecznie , sprzedam piękną działkę na Czarnym wraz z pozwoleniem na budowę . 730 m2 .Działka jest równa , blisko do centrum około 7 minut , w pobliżu jest market DINO oraz pętla auto
Sprzedam działkę-przedwczoraj, 20:18
Osiedle Czarne działka budowlana 146211zł
M&B Fechner oferuje Państwu działkę budowlaną położoną w Jeleniej Górze na Osiedlu Czarnym. Działka o powierzchni 489m2, płaska, doskonale nasłoneczniona. Teren objęty MPZP, oznaczony symb
Sprzedam działkę-4 kwietnia
Działki w Sosnówce
ŚWIETNA OFERTA– działki w Sosnówce, jednej z najładniejszych miejscowości w okolicach Karpacza. Idealne pod budowę domu, domków letniskowych albo inwestycję turystyczną. Dostępne powie
Sprzedam działkę-29 marca
Działka w Komarnie za 155 000 zł
Biuro Nieruchomości Perfect Prezentuje Państwu działkę budowlaną położoną w Komarnie z widokiem na Śnieżkę. Zobacz YouTube: https://youtu.be/26QvdwQvqwk?si=aOwwp0SKOOK4j_Jy Dwie dział
Sprzedam działkę-2 kwietnia
Kromnów, dz. budowlana 1841m2- 276tys.-ładny widok
Oferujemy do sprzedaży 2 działki budowlane położone w malowniczej miejscowości KROMNÓW. Działki o powierzchni 1841m2 oraz 1966m2- w cenie 150zł/m2. ISTNIEJE MOŻLIWOŚĆ KUPIENIA MNIEJSZEJ DZ
Sprzedam działkę-27 marca
Działka w Ścięgnach
Biuro Nieruchomości Panorama prezentuje Państwu ofertę sprzedaży działki o powierzchni 2102 m2 w malowniczych Ścięgnach, zaledwie 3 km od Karpacza. Kształt nieregularny, płaska, dobrze nas
Sprzedam działkę-1 kwietnia
Jelenia Góra Jagniątków - blisko szlaków
Biuro Nieruchomosci Perfect prezentuje Państwu malowniczo położoną działkę budowlaną w miejscowości Jagniątków. Cena 289 000 zł Działka usytuowana w cichej lokalizacji pośród his
Sprzedam działkę-2 kwietnia
© 2002-2026 Highlander's Group