OgÅ‚oszeÅ„: 2475   CzytajÄ…cych: 9936
Walbrzyszek.com

Nowe M2 na Paryskiej - 319.000 zł

Telefon / kontakt:
Dodane:
wczoraj, 16:25
Biuro nieruchomości Perfect ma do zaoferowania Państwu mieszkanie 2 pokojowe położone na Osiedlu Europejskim - ul. Paryska.

Paryska 15 - to nowa inwestycja powstająca na Osiedlu Europejskim. 11 lokali mieszkalnych, położone w zacisznym miejscu osiedla.

Nieruchomość znajduje się w nowym budynku, oddanym do użytkowania w wrześniu 2025r.

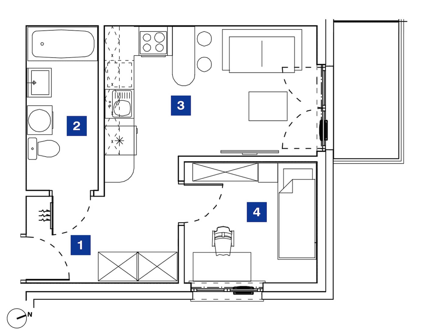
Mieszkanie położone na 1 piętrze.

Na powierzchnię 30,62m2 składają się - pokój z aneksem kuchennym (16,09m2), pokój (6,84m2), łazienka (5,04m2) i przedpokój (2,65m2).

Ogrzewanie podłogowe - pompa ciepła dla budynku. Każdy lokal posiada ciepłomierz.

Dodatkowo w budynku znajduje się pomieszczenie gospodarcze tzw rowerownia do użytku właścicieli lokali.

Do lokalu przynależy miejsce parkingowe naziemne.

Bardzo wygodna lokalizacja - spokojne, nowe osiedle położone blisko centrum ale na uboczu. Blisko do obwodnicy na Karpacz. Mieszkanie świetne jako baza wypadowa, wynajem lub mieszkanie na start.

Kupujący nie płaci podatku PCC ani wynagrodzenia biura nieruchomości.

Oferta dostępna wyłącznie u nas.

Cena - 319.000 zł

Polecam i zapraszam na prezentacjÄ™.
Nr ogłoszenia: 1854293 Ważne do: 2026-01-01 16:25:33

Inne ogłoszenia użytkownika

Więcej z kategorii Sprzedam mieszkanie

M3 z tarasem na zamkniętym osiedlu-67m2- 529tys
Biuro nieruchomoÅ›ci DÄ™biec ma do zaoferowania 3-pokojowe mieszkanie na Osiedlu Pod Jeleniami w Jeleniej Górze. Nieruchomość o powierzchni 67,27m2 znajduje siÄ™ na 1 piÄ™trze (ostatnim) szeregÃ
Sprzedam mieszkanie-9 grudnia
Dwupokojowe w okolicy SP2 - parter - do wejścia
Biuro Nieruchomości Dębiec ma do zaoferowania mieszkanie dwupokojowe w Centrum. Mieszkanie o powierzchni 35 m2 usytuowane na wysokim parterze dwupiętrowej kamienicy. Nieruchomość składa się
Sprzedam mieszkanie-16 grudnia
Karpacz. 2 pokoje z m. parkingowym
Na sprzedaż: 2-pokojowe mieszkanie z ogródkiem – Karpacz Lokalizacja: Karpacz Cena: 419 000 zł Powierzchnia: 52 m² Liczba pokoi: 2 Piętro: Parter Typ budynku: Dom wielorodzinny Stan mies
Sprzedam mieszkanie-13 grudnia
Trzypokojowe na Zabobrzu I z balkonem
Biuro Nieruchomości Panorama ma na sprzedaż mieszkanie trzypokojowe zlokalizowane na Zabobrzu I. Powierzchnia: 51,6 m2. Piętro: 3/4 w bloku bez windy. Czynsz: 421 zł plus opłata za śmieci.
Sprzedam mieszkanie-15 grudnia
Śliczne M2 w pobliżu deptaka
Biuro Nieruchomości Perfect ma Państwu do zaoferowania bardzo ładne, 2-pokojowe mieszkanie, zlokalizowane niemal przy samym głównym deptaku Jeleniej Góry. Mieszkanie o pow. użytkowej 55,49m2
Sprzedam mieszkanie-16 grudnia
Trzypokojowe na wysokim parterze - Zabobrze I
Biuro Nieruchomości Dębiec ma do zaoferowania mieszkanie trzypokojowe na Zabobrzu I. Lokal o powierzchni 51m2 usytuowany na wysokim parterze bloku. Nieruchomość składa się z: -przedpokoju,
Sprzedam mieszkanie-12 grudnia
Dwupokojowe w centrum
Kama Nieruchomości prezentuję Państwu dwupokojowe mieszkanie o powierzchni 35m2 usytuowane na parterze kamienicy w Centrum Jeleniej Góry. W skład którego wchodzą: - salon z aneksem kuchen
Sprzedam mieszkanie-8 grudnia
Nowa cena! - dwupokojowe - Zabobrze II - 285 tys
Biuro Nieruchomości Dębiec ma do zaoferowania mieszkanie dwupokojowe na Zabobrzu II Lokal o powierzchni użytkowej 52,51 m2 usytuowany na 8 piętrze wieżowca z windą. W skład nieruchomości w
Sprzedam mieszkanie-12 grudnia
Rodzinna,72,80m2-3pokoje-balkon-ogródek-520tys
Biuro Nieruchomości Fankulewscy posiada w ofercie na wyłączność piękny apartament przy ul.  RODZINNEJ w Jeleniej Górze. Mieszkanie na I piętrze kamienicy o powierzchni całkowitej wraz z
Sprzedam mieszkanie-wczoraj, 14:37
© 2002-2025 Highlander's Group